面積:200平米
設計師:武林慧


優點:
1.戶型方正、動線分明、南北通透、
三面采光。
2.玄關,客廳,餐廳,廚房相
連動線明確
缺點:
1.廚房面積過于狹小
改造:
1.將廚房墻垛拆掉,做成開放式廚房,引入更多光線的同時,擴大了廚房的面積,增加了吧臺功能需求。
2.通過改變廚房墻體結構,既增大了廚房的儲物空間,又為入戶玄關增加了鞋帽柜方便回家衣物的放置。


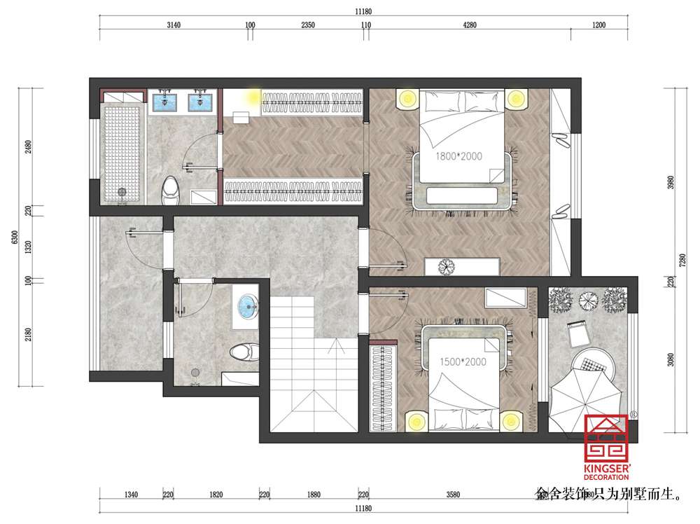
上疊戶型 200㎡二層戶型
優點:
1.南北通透,采光,通風良好
2.主臥連接衣帽間,衛生間動線分明次臥附帶生活陽臺,增加生活情趣
缺點:
1.主衛面積偏大浪費空間,反而衣帽間面積過小,空間劃分不夠合理
改造:
1.合理劃分主衛和衣帽間面積,縮小主衛面積,擴大衣帽間面積,使其功能需求更加合理


上疊戶型 200㎡三層戶型
優點:
1.戶型方正,可利用性高
改造:
1.把可拆除墻體全部拆除,使其空間更加通透,采光更好