維多利亞118平現代風格戶型解析
來源:金舍裝飾
瀏覽:次
更新時間:2021-10-31 09:54:11

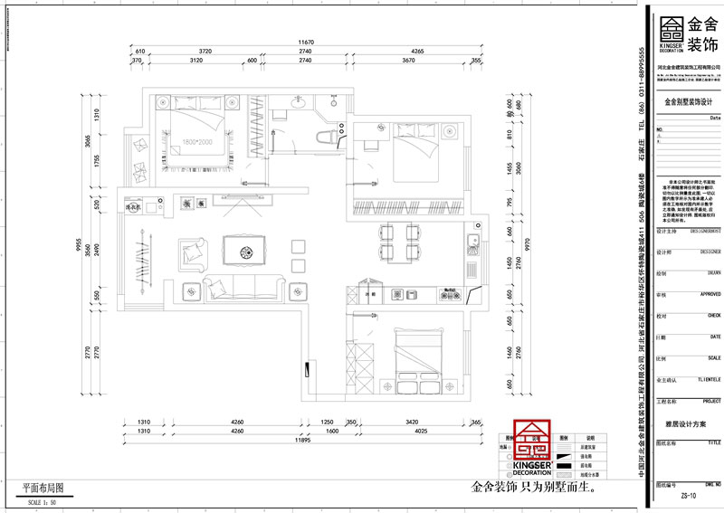
維多利亞118平原始戶型圖
戶型解析
優點分析:
1.布局合理,動靜分離
2.公共空間大,儀式感強
3.戶型空間方正
4.三室兩廳兩衛功能分區充足,可以滿足不同需求
5.衛生間空間相對比較大,可以做干濕分區
6.客廳觀景陽臺很開闊
缺點
1.餐廳及廚房采光性差,需要通過設計手法來解決
2.入戶沒有鞋帽柜,需要合理布置
3.廚房空間相對較小,不能滿足電器的使用
維多利亞118平新建圖
拆改方法:
入戶墻打掉做背靠背柜子,增加儲物空間。
維多利亞118平新建圖
拆改方法:
入戶墻打掉做背靠背柜子,增加儲物空間。